CT-19 New Product
CONCEPTUAL DESIGN : แนวความคิดในการออกแบบ
แนะนำแบบบ้าน ใหม่ แบบ Modern Style
แบบ Modern Style 2 ชั้น แบบผสมผสาน รูปทรงเราขาคณิต เรียบง่ายแต่มีสไตล์ ลดเส้นสายที่ไม่จำเป็นออกไป หลังคาทรงปั้นหยา Hip roof ทำให้ดูอบอุ่น และมีมิติ เข้ากับสภาวอากาศ
โทนสี Tropical สีเขียว สื่อถึง ความผ่อนคลาย ความมั่นคง ทางอารมณ์
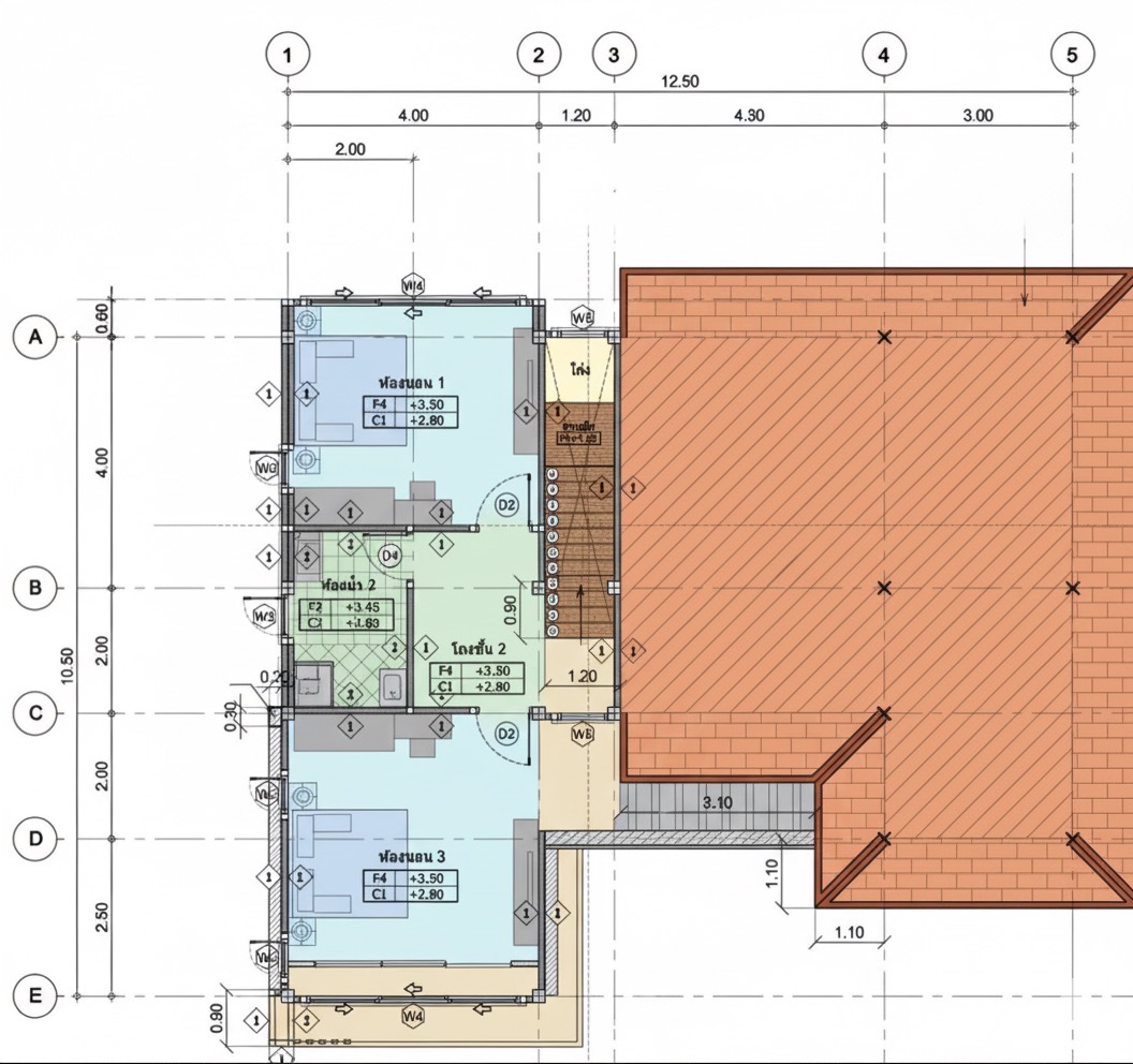
ปลูกสร้างขนาดที่ดิน 50 ตารางวา
บ้าน 1 ชั้นครึ่ง
3 ห้องนอน
2 ห้องน้ำ
2 ที่จอดรถ
พื้นที่ 169 ตรม.



